Cliente: Skanska

Plataforma, escaleras y edificio de reactores

Alcance de los trabajos

  • Plataforma

    • Construcción de plataforma en parral secundario – HTN II

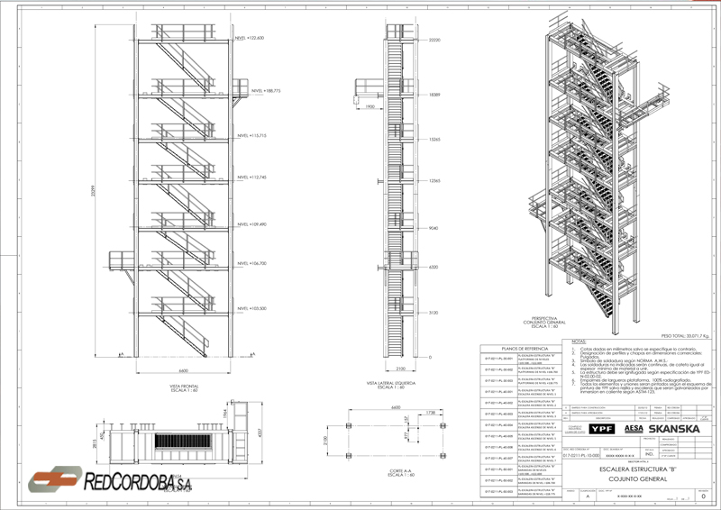
  • Escaleras

    • Fabricación y montaje de escalera de estructura B

  • Edificio de Reactores

    • Trabajos estructurales en el edificio de reactores